Bouwbedrijf regio Middelrode
Een bouwkavel in Middelrode? Binnenkort kan je droom zomaar werkelijkheid worden. In dit prachtige Brabantse dorp is momenteel een nieuwe woonwijk in ontwikkeling. De gemeente Sint-Michielsgestel staat namelijk voor een enorme woningbouwopgave. Daarom worden er ook in Middelrode nieuwe huizen gebouwd. Als onderdeel van het Noord-Brabantse initiatief Ruimte voor Ruimte komen hier 15 vrije bouwkavels beschikbaar. Dit biedt jou de perfecte kans om op een mooi stukje grond in Middelrode jouw droomwoning te laten bouwen! En laat dat nou is goed uitkomen, want als bouwbedrijf in de regio Middelrode hebben wij al veel ervaring met bouwen in de omgeving.
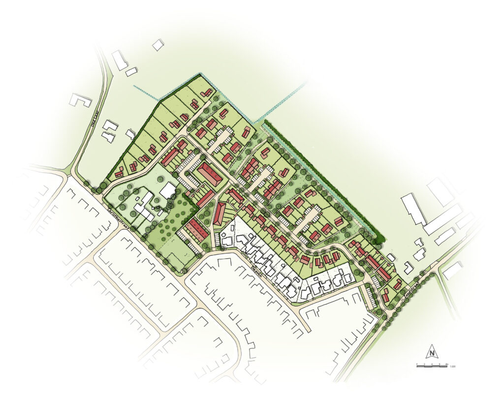
Nieuwe woonwijk met vrije bouwkavels in Middelrode: ”Laarzicht”
Aan de noordoostelijke rand van Middelrode, aan de Christinastraat, Diepven en Oude laar, wordt de nieuwe woonwijk ”Laarzicht” ontwikkeld. Het gehele woningbouwplan biedt ruimte aan zo’n 116 wooneenheden. Het betreft woningen in de categorie sociale huur, middeldure koop en dure koop. Naast deze projectmatige woningen worden er dus ook 15 vrije kavels beschikbaar gesteld. Deze vrije bouwkavels variëren in grootte van circa 500 m2 tot circa 900 m2. Hiermee heb je dus verschillende opties, en is er voor ieder wat wils! Het bestemmingsplan is door de gemeenteraad op 6 februari 2025 vastgesteld. Helaas is er in mei beroep tegen het plan ingediend. Momenteel voeren Ruimte voor Ruimte en de gemeente samen verweer tegen het beroep, en is de verwachting dat de verkoop van de bouwkavels medio 2026 van start zal gaan. Houdt voor nu dus goed de website van Ruimte voor Ruimte in de gaten, daar staat alle recente informatie over Laarzicht op.
Prachtig en landelijk wonen in Middelrode
De nieuwe wijk grenst direct aan de bestaande kern van Middelrode. Bij de ontwikkeling van het plan staan de bestaande kwaliteiten, zowel van de bebouwing als van de omgeving, centraal. Bij de inrichting van de openbare ruimte wordt er gezorgd voor veel groen en mooie zichtlijnen. Deze inrichting onderstreept het gevoel dat je in een landelijke omgeving woont, wat natuurlijk goed past bij een dorp als Middelrode. De woningen die op de vrije kavels gebouwd zullen worden kenmerken zich dan ook door een eigentijdse en landelijke stijl. Ze bestaan uit één-, anderhalve- of twee lagen met een kap. Hiermee is veel variatie mogelijk in de ontwerpen, en zullen er zowel woningen zijn met de nadruk op de kap als op de gevel. De uitstraling wordt verder getypeerd door toepassing van verouderende materialen, zoals baksteen, hout, zink en riet. Met deze materialen is er veel mogelijk in het ontwerp van jouw droomwoning in Middelrode, en zorgen we ervoor dat je woning echt een uniek en karakteristiek stukje Middelrode wordt.
Vroeg schakelen is veel besparen
Heb je besloten je eigen huis te bouwen? Dan is dat het ideale moment om met ons aan tafel te gaan zitten. Wij zijn als bouwbedrijf uit de regio Middelrode goed bekend met de gang van zaken in de omgeving. Ons bedrijf zit in Zijtaart, echt maar een steenworp afstand vanaf Middelrode. Lekker lokaal bouwen dus, en dat is iets wat wij als 100-jarig Brabants bouwbedrijf het graagst doen. Liefst schuiven we al aan voordat je een architect hebt ingeschakeld, dan gaan wij samen met jou kijken naar een architect die goed bij jouw stijl past. Maar daarna kan natuurlijk ook, we werken dan samen met de architect van jouw keuze. Hoe vroeger we meepraten, hoe eerder jouw dromen tot een prachtig en vooral realistisch plan worden gebracht. Wij combineren onze expertise als bouwbedrijf samen met de creativiteit van de architect en jouw wensen als opdrachtgever. Op deze manier bundelen we onze krachten en voorkomen we dat jij voor onaangename verassingen komt te staan. Zo bouwen we samen aan een droomhuis in Middelrode, binnen je budget en uiteraard met de hoogste kwaliteit die je van een ervaren bouwbedrijf uit de regio Middelrode kunt verwachten! Benieuwd naar andere woningen die wij al in de regio hebben gebouwd? Kijk eens even bij onze projecten voor wat inspiratie.
Meer informatie over Bouwbedrijf Van Boxmeer?
Op onze website lees je meer over onze werkwijze bij nieuwbouw. Zie jij zelf jouw droomwoning bouwen in Middelrode wel zitten? Neem gerust contact met ons op voor een vrijblijvende kennismaking en een kopje koffie. We gaan graag een keertje kletsen, tot snel!

Deze dromers gingen je voor!
We begrijpen het als je nog niet helemaal overtuigd bent, want op deze website weten wij het allemaal wel mooi te vertellen! Daarom nodigen we je uit om op de recensiesite bouwnu.nl te kijken. Daar vertellen onze voormalige opdrachtgevers over de periode waarin ze met ons hebben gewerkt om hun dromen uit te laten komen. Hieronder laten we alvast een stukje van hun verhalen zien, voor de volledige recensies kun je op de website kijken!
Tijs & Marlin uit Langenboom
”Het zijn vakmannen, ze zijn flexibel, denken proactief mee en ze komen hun afspraken na. Het zijn daarnaast sympathieke mensen die je graag over de vloer hebt.”
Eric uit Mariaheide
”Het gehele bouwproces is vlekkeloos verlopen (midden in de corona periode, de net begonnen oorlog met Oekraine en alle uitdagingen die dat met zich meebracht t.a.v. leverdata en prijs explosies). Ondanks de woelige baren altijd in gesprek gebleven met elkaar met als eindresultaat een schitterende woning.”